¿Listo para invertir en pozo
en el centro geográfico de la ciudad?
Luminosos departamentos de categoría, aptos profesional
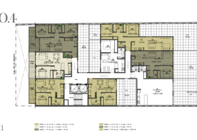
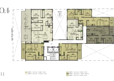
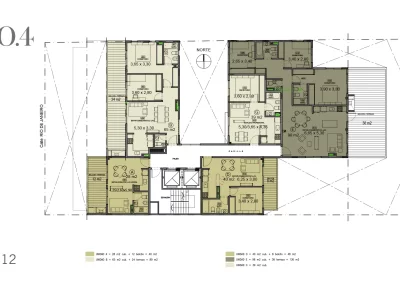
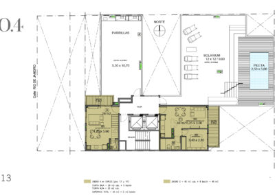
AMPLIAS UNIDADES
DE 1, 2, 3 y 4 AMBIENTES
• Unidades de categoría
• Doble frente
• Terminaciones de calidad
• Doble vidriado en aberturas
• Barandas panorámicas de aluminio anodizado y cristales incoloros
•Piso de porcelanato en ambientes, baños y cocinas
• Cocinas con mesadas símil silestone
• Artefactos de baño Ferrum y grifería FV
• Climatización frio-calor con equipos split
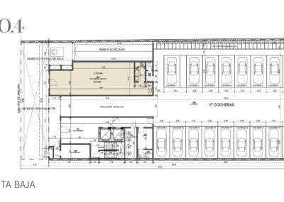
Amenities
Todas las unidades están equipadas con mesadas de símil silestone, equipo individual de aire frío-calor en todos los ambientes, termotanques centrales para agua caliente, carpintería exterior A30 New con doble vidrio hermético (DVH), pisos de porcelanato y cocina a gas.
Ubicación
- A 2 cuadras del Parque Centenario
- A 6 cuadras de líneas de subte A y B
- A 20min desde cualquier punto de la ciudad









